近鉄八尾駅徒歩約5分!/☆居酒屋居抜き☆/1階路面店舗//X632
NEW イチオシ特選物件
- 物件情報
-
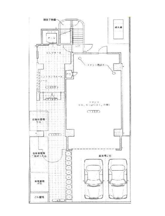
所在地 大阪府八尾市光町2 近隣駅1 - 近隣駅2 - 坪数 約20.99坪 賃料(税込) 330,000円 共益費(税込) 0円 敷金 0円 礼金(税込) 990,000円 譲渡金(税込)什器備品造作代 6,050,000円 前(現)業種 居酒屋 所在階 1階路面店舗 おすすめ業種 居酒屋、串カツ、和食料理
- 営業中
- 居抜き
- 路面
- 駅チカ
- 飲食
- 軽飲食
- テイクアウト
- 物販/サービス
- その他サービス
この物件のお問合せはこちらから!
この物件を担当に問い合わせる - お電話にて物件IDをお伝えください。
06ー6881ー8100平日10:00-19:00 日祝除く
近鉄大阪線「近鉄八尾」駅から徒歩約5分!
アリオ八尾、リノアスから至近の好立地!
居酒屋居抜きの1階路面店舗です♪♪
カウンター5席~、座敷4人席×3、
個室もあり、ファミリーや宴会需要も取り込めます!
キッチン設備一式に冷蔵庫・冷凍庫等も揃っていますので
初期費用を抑えて開業が可能ですよ☆
店舗前には2台駐車スペースあり!
業種・業態について、まずはご相談くださいね!
現在盛業中のため、内覧をご希望の方は必ず事前のご予約をお願いいたします!
諸条件等のご相談も承ります!
その他詳細もお気軽にお問い合わせくださいませ!
お待ちしております♪
※造作譲渡費用605万円と記載しておりますが、ご相談が可能です。
※火災保険加入要(指定有)
※保証会社加入要(指定有)
- 成約済みや貸主様のご都合で取引条件の変更がある場合がございます。 まずはお問い合わせください。
