粉浜駅徒歩約3分!/☆お惣菜屋居抜き☆/1階路面店舗+2階//NS417
イチオシ人気エリア
- 物件情報
-
所在地 大阪市住之江区粉浜2 近隣駅1 阪堺電気軌道阪堺線 東粉浜駅 徒歩約4分 近隣駅2 南海電鉄本線 住吉大社駅 徒歩約5分 坪数(延) 約29.28坪 賃料(税込) 130,000円 共益費(税込) 14,330円 保証金 0円 礼金(税込) 260,000円 前(現)業種 お惣菜屋 所在階 1階路面店舗+2階(店舗戸建) おすすめ業種 お惣菜屋、カフェ、テイクアウト店
- 居抜き
- 路面
- 駅チカ
- 商店街
- 1棟貸し
- 飲食
- 軽飲食
- テイクアウト
- 物販/サービス
- その他サービス
この物件のお問合せはこちらから!
この物件を担当に問い合わせる - お電話にて物件IDをお伝えください。
06ー6881ー8100平日10:00-19:00 日祝除く
南海電鉄本線「粉浜」駅から徒歩約3分!
阪堺電気軌道阪堺線「東粉浜」駅からも徒歩約4分!
南海電鉄本線「住吉大社」駅からも徒歩約5分!
阪堺電気軌道上町線「住吉」駅からも徒歩約5分!
アーケード型商店街「粉浜駅前商店街」内!
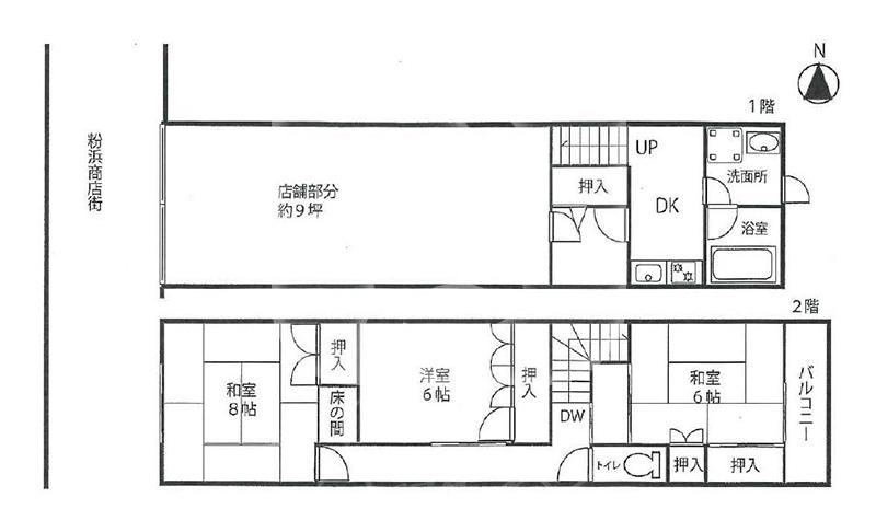
お惣菜屋居抜きの1階路面店舗+2階(店舗戸建)です♪♪
1階:約15.47坪、2階:約13.81坪です☆
飲食店可能ですよ☆
業種・業態について、まずはお問い合わせくださいね!
内覧をご希望の方は必ず事前のご予約をお願いいたします!
即お引渡し可能な店舗です!
その他詳細はお気軽にお問い合わせくださいませ!
お待ちしております♪
※商店街入会費:80,000円、商店街出資金:20,000円が別途必要です。
※火災保険要加入(指定有)
※保証会社要加入(指定有)
- 成約済みや貸主様のご都合で取引条件の変更がある場合がございます。 まずはお問い合わせください。

