桜ノ宮駅徒歩約3分!/☆中華料理店居抜き☆/1階路面店舗//HT1024
NEW イチオシ特選物件人気エリア
- 物件情報
-
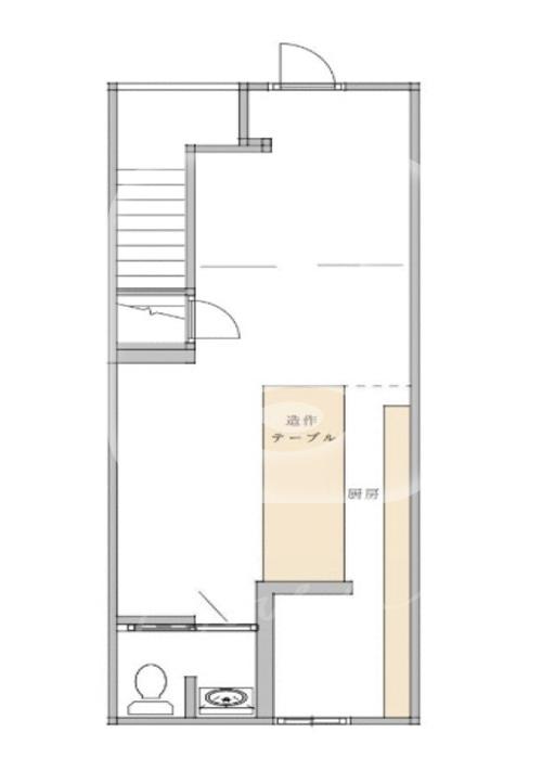
所在地 大阪市都島区中野町5 近隣駅1 大阪メトロ谷町線 都島駅 徒歩約8分 近隣駅2 - 坪数 約10.29坪 賃料(税込) 187,000円 共益費(税込) 10,000円 敷金 340,000円 礼金(税込) 374,000円 譲渡金(税込)什器備品造作代 1,500,000円 前(現)業種 中華料理店 所在階 1階路面店舗 おすすめ業種 ラーメン・中華料理、焼肉・焼鳥、カレー・多国籍料理、居酒屋・立ち飲み、イタリアン・ビストロ、ダイニングバー、カフェ・喫茶店
- 営業中
- 居抜き
- 路面
- 駅チカ
- 重飲食
- 飲食
- 軽飲食
- テイクアウト
- 物販/サービス
- その他サービス
この物件のお問合せはこちらから!
この物件を担当に問い合わせる - お電話にて物件IDをお伝えください。
06ー6881ー8100平日10:00-19:00 日祝除く
JR大阪環状線「桜ノ宮」駅から徒歩約3分!
大阪メトロ谷町線「都島」駅からも徒歩約8分!
2沿線以上が利用可能な交通アクセス至便立地!
中華料理店居抜きの1階路面店舗です♪♪
店内はこだわりのあるおしゃれな内装で、
様々な業態に転用しやすい作りになっています☆
周辺はマンション・戸建て等の住居が多いエリアですので
地域密着型店舗にもおすすめですよ!
業種・業態について、まずは何なりとご相談くださいね!
現在盛業中のため、内覧をご希望の方は必ず事前のご予約をお願いいたします!
その他詳細もお気軽にお問い合わせくださいませ!
お待ちしております♪
※保証会社加入要(指定有)
※火災保険加入要(指定有)
- 成約済みや貸主様のご都合で取引条件の変更がある場合がございます。 まずはお問い合わせください。
