恵美須町駅徒歩約3分!/☆スケルトン☆/1階路面店舗//S1320 | 飲食店舗紹介専門店 添縁 -Foody- 飲食店の居抜きならお任せください
開業される方
開業スタイル
居抜き物件とは
開業資金について
開業までのスケジュール
店舗運営サポート
店舗を貸したい方
閉店・移転をお考えの方
開業したいお客様一覧
不動産の売買をお考えの方
成約実績のご紹介
コラム

サイトマップ プライバシーポリシー

お問い合わせ

ホームページに掲載できないシークレット物件も多数ございます。お気軽にお問い合わせください。

開業される方
お問い合わせ
店舗を貸したい方 閉店・移転をお考えの方
お問い合わせ
不動産の売買をお考えの方
お問い合わせ

お問い合わせダイヤル

ホームページに掲載できないシークレット物件も多数ございます。お気軽にお問い合わせください。

物件IDをお伝えください。
06-6881-8100 受付時間:10:00 - 19:00 (日祝除く)

恵美須町駅徒歩約3分!/☆スケルトン☆/1階路面店舗//S1320
特選物件人気エリア

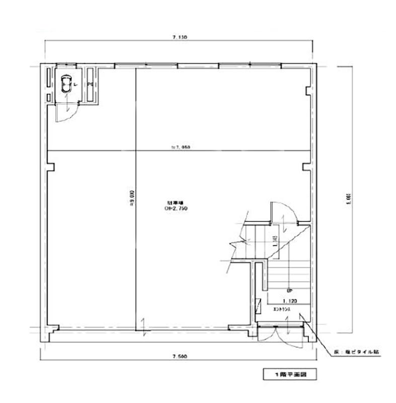
物件ID:S1320 大阪メトロ堺筋線 恵美須町駅 徒歩約3分
物件情報
所在地 大阪市浪速区日本橋東3
近隣駅1 南海電鉄高野線 今宮戎駅 徒歩約9分
近隣駅2 大阪メトロ谷町線 四天王寺前夕陽ヶ丘駅 徒歩約13分
坪数 約17.54坪
賃料(税込) 440,000円
共益費(税込) 0円
敷金 800,000円
礼金(税込) 440,000円
所在階 1階路面店舗
  • スケルトン
  • 路面
  • 駅チカ
  • 飲食
  • 軽飲食
  • テイクアウト
  • 物販/サービス

この物件のお問合せはこちらから!

この物件を担当に問い合わせる
お電話にて物件IDをお伝えください。
06ー6881ー8100平日10:00-19:00 日祝除く

大阪メトロ堺筋線「恵美須町」駅から徒歩約3分!

南海電鉄高野線「今宮戎」駅からも徒歩約9分!

大阪メトロ谷町線「四天王寺前夕陽ヶ丘」駅からは徒歩約13分!

通天閣商店街まで徒歩約5分!

間口は約5.5mございます!

飲食店相談可能ですよ☆

業種・業態について、まずはお問い合わせくださいね!

内覧をご希望の方は必ず事前のご予約をお願いいたします!

お引渡し時期はご相談ください!

その他詳細はお気軽にお問い合わせくださいませ!

お待ちしております♪

※テナント火災保険要加入(指定有)

※事業用家賃保証会社要加入(指定有)

  • 成約済みや貸主様のご都合で取引条件の変更がある場合がございます。 まずはお問い合わせください。
この物件を担当に問い合わせる
06ー6881ー8100平日10:00-19:00 日祝除く