天神橋筋六丁目駅徒歩約3分!/☆スケルトン☆/1階路面店舗+2階//U1031
NEW イチオシ特選物件人気エリア
- 物件情報
-
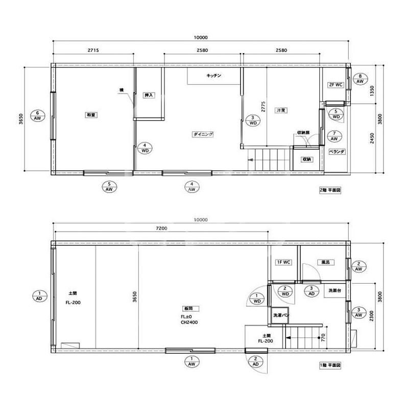
所在地 大阪市北区本庄東1 近隣駅1 阪急電鉄千里線 天神橋筋六丁目駅 徒歩約3分 近隣駅2 大阪メトロ谷町線 中崎町駅 徒歩約8分 坪数(延) 約22.32坪 賃料(税込) 275,000円 共益費(税込) 0円 敷金 250,000円 礼金(税込) 275,000円 所在階 1階路面店舗+2階(店舗戸建)
- スケルトン
- 路面
- 駅チカ
- 1棟貸し
- 重飲食
- 飲食
- 軽飲食
- テイクアウト
- 物販/サービス
- 医療
- その他サービス
この物件のお問合せはこちらから!
この物件を担当に問い合わせる - お電話にて物件IDをお伝えください。
06ー6881ー8100平日10:00-19:00 日祝除く
大阪メトロ堺筋線・谷町線・阪急千里線「天神橋筋六丁目」駅から徒歩約3分!
大阪メトロ谷町線「中崎町」駅からも徒歩約8分!
2沿線以上が利用可能な交通アクセス至便立地!
スケルトンの1階路面店舗+2階(店舗戸建)です♪♪
スケルトンですので、内装自由にレイアウトできますよ☆
重飲食相談可能です!
飲食店の他、何商でも相談可能です!
業種・業態について、まずは何なりとご相談くださいね!
内覧をご希望の方は必ず事前のご予約をお願いいたします!
即お引渡し可能な店舗です!
その他詳細はお気軽にお問い合わせくださいませ!
お待ちしております♪
※定期建物賃貸借契約:期間7年(再契約可能)
※火災保険要加入(指定有)
※賃貸保証会社要加入(指定有)
- 成約済みや貸主様のご都合で取引条件の変更がある場合がございます。 まずはお問い合わせください。
