南森町駅徒歩約6分!/☆スケルトン☆/1階路面店舗//U993
イチオシ人気エリア
- 物件情報
-
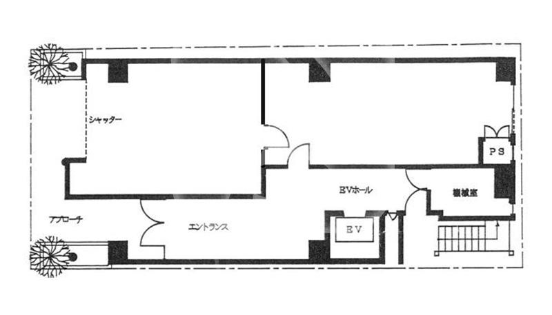
所在地 大阪市北区西天満5 近隣駅1 JR東西線 大阪天満宮駅 徒歩約8分 近隣駅2 JR大阪環状線 天満駅 徒歩約12分 坪数 約24.99坪 賃料(税込) 412,500円 共益費(税込) 27,500円 敷金 375,000円 礼金(税込) 1,237,500円 所在階 1階路面店舗
- スケルトン
- 路面
- 駅チカ
- 軽飲食
- テイクアウト
- 物販/サービス
- その他サービス
この物件のお問合せはこちらから!
この物件を担当に問い合わせる - お電話にて物件IDをお伝えください。
06ー6881ー8100平日10:00-19:00 日祝除く
大阪メトロ堺筋線・谷町線「南森町」駅から徒歩約6分!
JR東西線「大阪天満宮」駅からも徒歩約8分!
JR大阪環状線「天満」駅からも徒歩約12分!
大阪メトロ谷町線「東梅田」駅からも徒歩約12分!
2沿線以上が利用可能な交通アクセス至便立地!
スケルトンの1階路面店舗です♪♪
スケルトンですので、お好きな内装にできますよ☆
軽飲食相談可能です!
油、煙、匂い、アルコール提供のない飲食のみ相談可能です!
店舗の他、事務所としての利用も可能です!
業種・業態について、まずはお問い合わせくださいね!
内覧をご希望の方は必ず事前のご予約をお願いいたします!
お引渡し時期はご相談ください!
その他詳細はお気軽にお問い合わせくださいませ!
お待ちしております♪
※火災保険要加入(指定有)
※保証会社要加入(指定有)
- 成約済みや貸主様のご都合で取引条件の変更がある場合がございます。 まずはお問い合わせください。
