西田辺駅徒歩約2分!/☆新築スケルトン☆/1階路面店舗+2階//T310
イチオシ特選物件人気エリア
- 物件情報
-
所在地 大阪市阿倍野区阪南町5 近隣駅1 JR阪和線 鶴ヶ丘駅 徒歩約11分 近隣駅2 JR阪和線 南田辺駅 徒歩約13分 坪数(延) 約29.9坪 賃料(税込) 275,000円 共益費(税込) 0円 敷金 550,000円 礼金(税込) 825,000円 所在階 1階路面店舗+2階 おすすめ業種 居酒屋・バル、イタリアン・フレンチ、ダイニングバー、洋食レストラン、カフェ、物販その他
- スケルトン
- 路面
- 駅チカ
- 大通り
- 1棟貸し
- 飲食
- 軽飲食
- テイクアウト
- 物販/サービス
- その他サービス
この物件のお問合せはこちらから!
この物件を担当に問い合わせる - お電話にて物件IDをお伝えください。
06ー6881ー8100平日10:00-19:00 日祝除く
大阪メトロ御堂筋線「西田辺」駅から徒歩約2分!
JR阪和線「鶴ヶ丘」駅からも徒歩約11分!
JR阪和線「南田辺」駅からは徒歩約13分!
2沿線以上が利用可能な交通アクセス至便立地!
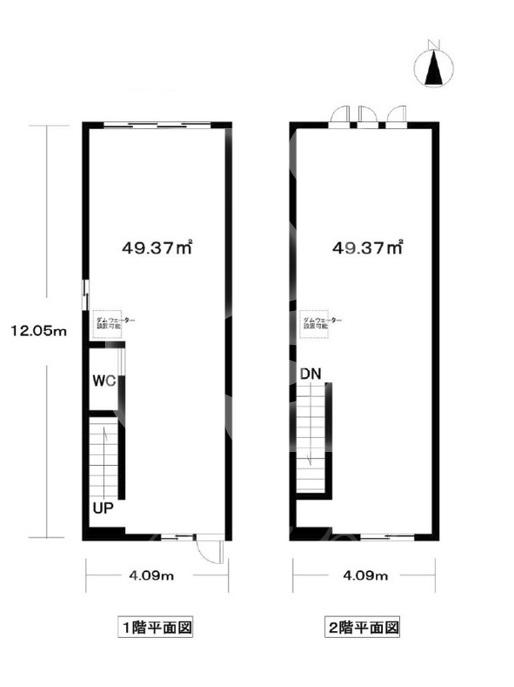
新築スケルトンの1階路面店舗+2階(戸建店舗)です♪♪
1階:約14.93坪、2階:約14.93坪です!
スケルトンのため、業態を問わず自由なレイアウトにできます!
視認性のある大通り(南港通)沿いで様々な業種におすすめです☆
飲食店の他、物販・サービス店舗・事務所など
業種・業態について、まずはご相談くださいね!
2025年11月完成予定ですので
内覧やお引渡し時期についてはお問い合わせください!
その他詳細もお気軽にどうぞ!
お待ちしております♪
※インボイス発行不可
※保証会社加入要(指定有)
※火災保険加入要
- 成約済みや貸主様のご都合で取引条件の変更がある場合がございます。 まずはお問い合わせください。
