大国町駅徒歩約2分!/☆餃子店居抜き☆/1階路面店舗//S1200
特選物件人気エリア
- 物件情報
-
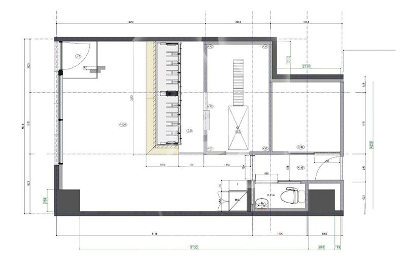
所在地 大阪市浪速区戎本町1 近隣駅1 南海電鉄高野線 今宮戎駅 徒歩約6分 近隣駅2 JR大阪環状線 今宮駅 徒歩約7分 坪数 約14.39坪 賃料(税込) 284,900円 共益費(税込) 16,500円 敷金 777,000円 礼金(税込) 854,700円 前(現)業種 餃子店 所在階 1階路面店舗 おすすめ業種 餃子店、中華料理店、多国籍料理
- 居抜き
- 路面
- 駅チカ
- 大通り
- 重飲食
- 飲食
- 軽飲食
- テイクアウト
- 物販/サービス
- その他サービス
この物件のお問合せはこちらから!
この物件を担当に問い合わせる - お電話にて物件IDをお伝えください。
06ー6881ー8100平日10:00-19:00 日祝除く
大阪メトロ御堂筋線・四つ橋線「大国町」駅から徒歩約2分!
南海電鉄高野線「今宮戎」駅からも徒歩約6分!
JR大阪環状線「今宮」駅からも徒歩約7分!
南海電鉄本線・JR大阪環状線「新今宮」駅からも徒歩約9分!
大通り(国道26号線)沿いで視認性良好!
餃子店居抜きの1階路面店舗です♪♪
重飲食可能ですよ☆
業種・業態について、まずは何なりとご相談くださいね!
内覧をご希望の方は必ず事前のご予約をお願いいたします!
即お引渡し可能な店舗です!
その他詳細はお気軽にお問い合わせくださいませ!
お待ちしております♪
※賃料の他、ゴミ回収費:5,500円が別途必要です。
※ハウスクリーニング費用:100,000円が別途必要です。
※定期借家契約:期間3年
※火災保険要加入(指定有)
※保証会社要加入(指定有)
- 成約済みや貸主様のご都合で取引条件の変更がある場合がございます。 まずはお問い合わせください。
