南森町駅徒歩約5分!/☆新築スケルトン☆/地下1階店舗//U933
イチオシ特選物件人気エリア
- 物件情報
-
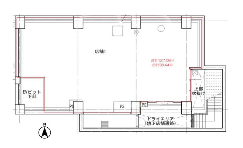
所在地 大阪市北区天神橋1 近隣駅1 JR東西線 大阪天満宮駅 徒歩約5分 近隣駅2 京阪電鉄本線 北浜駅 徒歩約10分 坪数 約38.44坪 賃料(税込) 550,000円 共益費(税込) 0円 敷金 3,000,000円 礼金(税込) 1,100,000円 所在階 地下1階店舗
- スケルトン
- 駅チカ
- 飲食
- 軽飲食
- テイクアウト
- 物販/サービス
- その他サービス
この物件のお問合せはこちらから!
この物件を担当に問い合わせる - お電話にて物件IDをお伝えください。
06ー6881ー8100平日10:00-19:00 日祝除く
大阪メトロ堺筋線・谷町線「南森町」駅から徒歩約5分!
JR東西線「大阪天満宮」駅からも徒歩約5分!
京阪電鉄本線・大阪メトロ堺筋線「北浜」駅からも徒歩約10分!
2沿線以上が利用可能な交通アクセス至便立地!
鳥居筋の路面角地で視認性良好!
新築スケルトンの地下1階店舗です♪♪
「天神橋1丁目表参道」すぐ近くです!
菅原道真公をお祀りした神社「大阪天満宮」までは徒歩約2分で、
軽飲食店などが多数あり、人通りの多いエリアですよ☆
現在建築中で、2026年4月に完成予定です!
重飲食は不可です。ご了承ください。
業種・業態について、まずはお問い合わせくださいね!
内覧可能時期についてはお問い合わせくださいませ!
その他詳細もお気軽にどうぞ!
お待ちしております♪
※定期建物賃貸借契約:期間10年
※火災保険・保証会社加入についてはお問い合わせください。
- 成約済みや貸主様のご都合で取引条件の変更がある場合がございます。 まずはお問い合わせください。
